a m p l e
AMPLE_MOOOR_02a.jpg

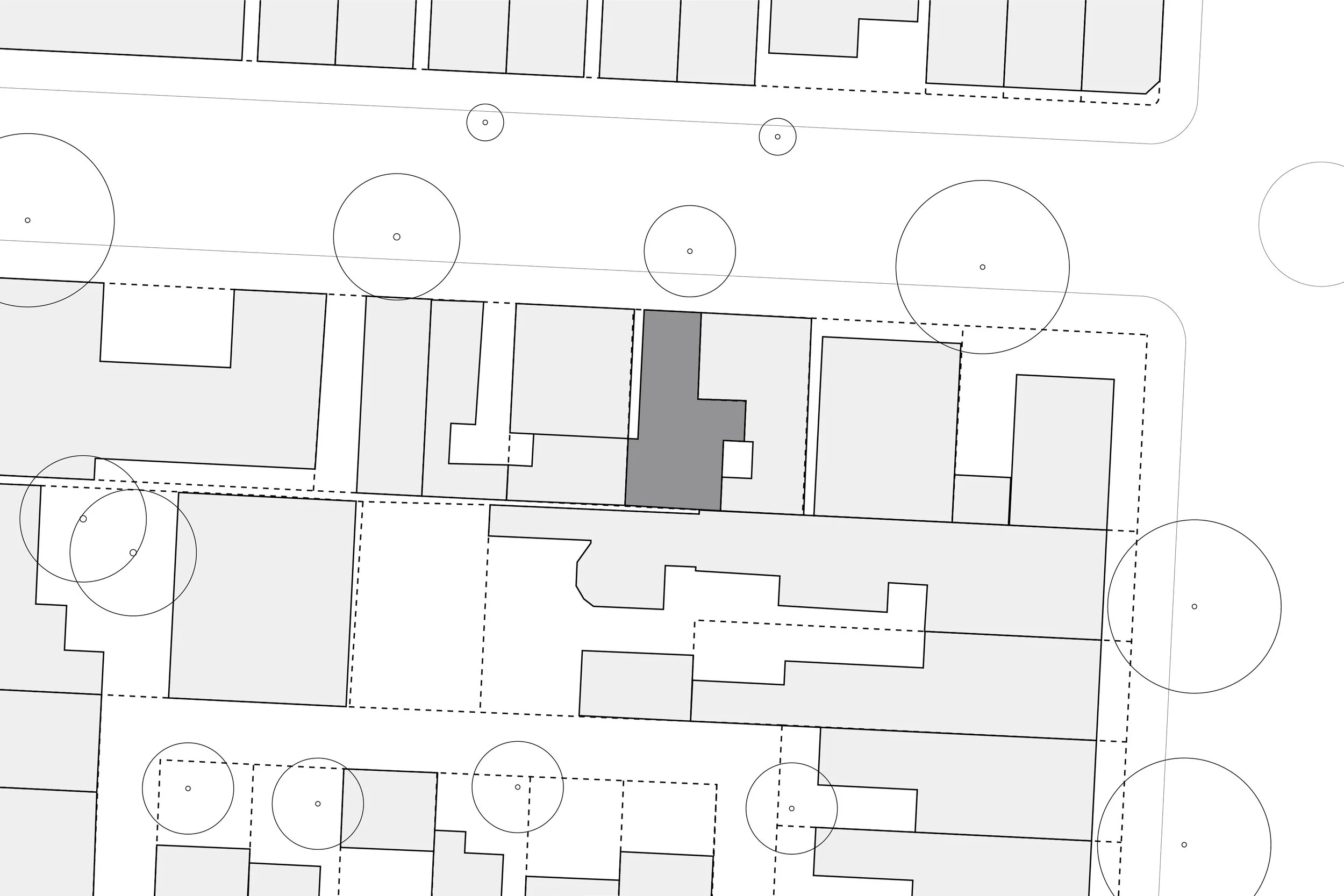
Gap House

 

Gap House, 2020

“Gap House” began as a game of millimeters. Situated in Fitzroy, the site’s tight inner-city conditions and irregular shape informed many design decisions from planning to construction access and materials. The existing house sat on a mere 75sqm and was built hard up against all its boundaries with no garden.  As much of the house was to be retained for heritage reasons, the only move to expand was to tack on enough volume above the rear end for an additional bedroom. With no room to spare and the desire to meet a sizeable functional brief, we knew it was imperative to make more with less.

 
AMPLE_MOOR ST_SITE PLAN-01.jpg
 
 
 
 

Being our own clients for this particular project allowed us to thoroughly explore the flexibility of the spaces available to cater for several specific uses and to expand the nuanced living possibilities. A multi-functional room on the ground floor serves as both a home office and a second bedroom but also offers scope for other adaptations on the fly such an impromptu dance floor during a house party.  Floor to ceiling cabinetry and a moving wall conceal a fold-down bed, a tidy workstation and plenty of inbuilt storage.

 
 
 
 

Inspired by the lack of access to natural daylight, the quest for all habitable rooms to be light-filled led us to “split” the house into two, creating a “gap” in the plan across both floors. Northern light is received in through glazing with operable shading in the first floor bedroom and down through the center of the house to the rooms below. This “gap” was an also opportunity to introduce a narrow internal strip garden, filling in the void of green so sorely needed to lend some extra qualities of softness, refuge and domesticity.

Adjacent spaces to this “gap” seemingly spill into it, creating a sense of added spaciousness and openness to these limited areas as well as a connection between upper and lower floors. A full-height curtain upstairs and a moving wall downstairs with multiple fenestrations allow the bedrooms to easily connect and disconnect from the main house, providing further flexibility with varying levels of privacy as needs arise.

 
 
05.jpg
 

Sections of the back of the heritage gabled roof are carved out to create a small rooftop deck for plants providing the top bedroom a greener outlook. The new deck allows for some much appreciated private outdoor space, previously thought to be unfeasible.

 
 
 

Images: Batch