a m p l e
AMPLE_CENTRE YARD HOUSE_LIVING.jpg

Belly House

 

Belly House, 2020

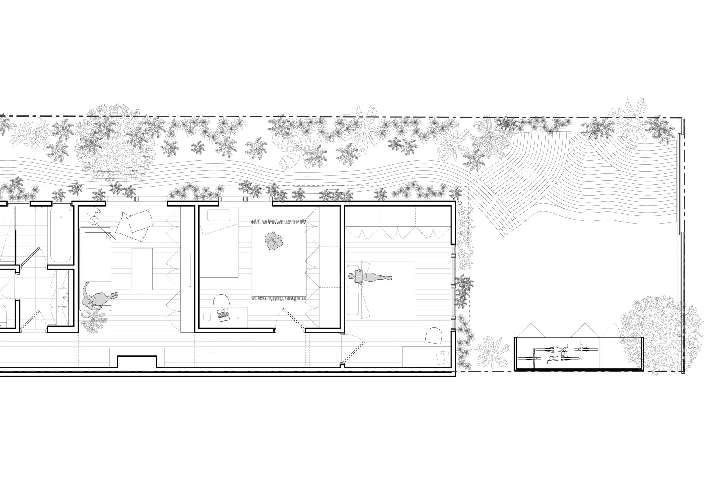
Located in Elwood on a wide leafy street, the original dwelling is a post war semi-d that has since had a series of renovation add-ons to the rear resulting in a confusing layout with duplicated amenities. The brief was to create a forever home that would better cater for a young modern family with well-connected shared spaces as well as areas that could easily be zoned off for privacy and refuge.

 
 
139 MITFORD_MEDIA DRAWINGS_SITE PLAN-01.jpg
 
 
 

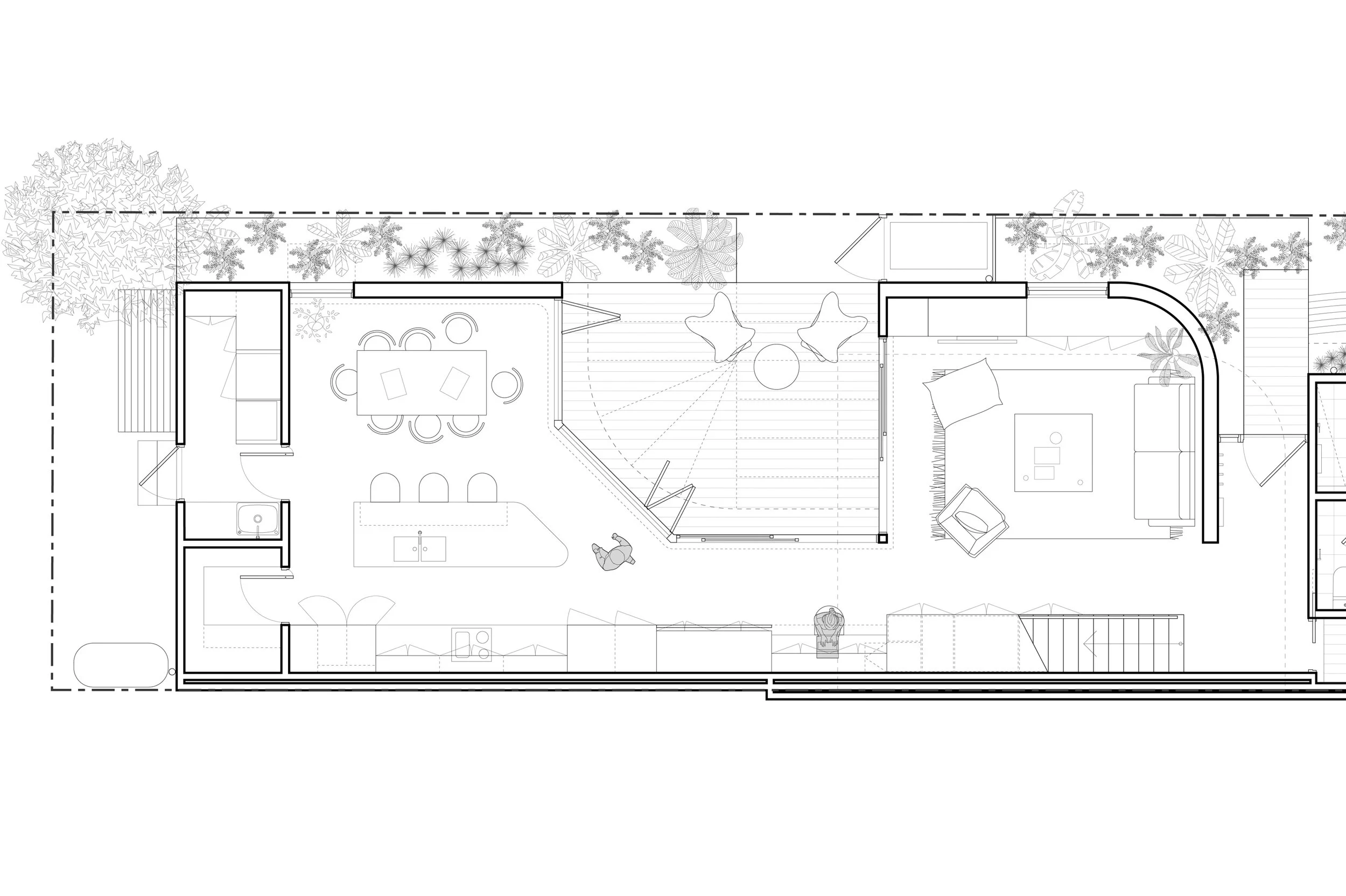
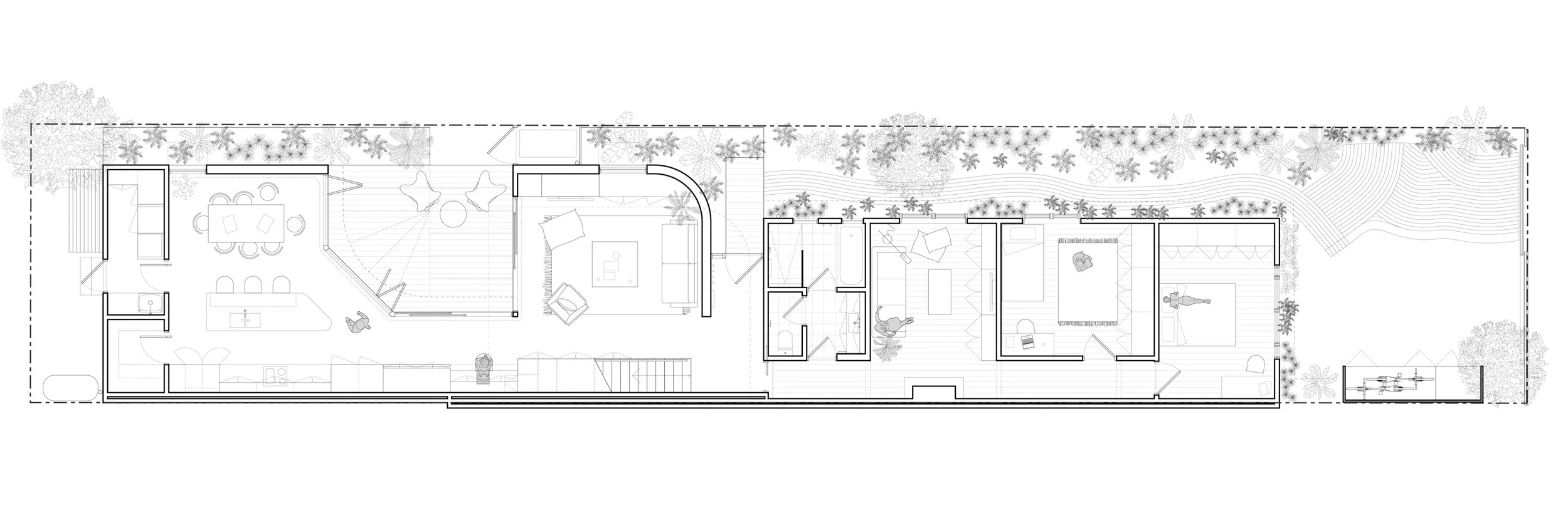
Our response was to create two separate zones for the parents and children that branched out from a shared public core with sliding doors to regulate privacy. Working opportunistically with the site constraints, an attempt to screen a large imposing neighbouring residence to the rear resulted in the decision to push the new build to the rear. This manoeuvre repositioned the iconic Australian backyard to the centre of the site, drawing in light into the belly of the house. Stretched linear progressions of “core” shared spaces were then wrapped around to hug this sunny central courtyard, allowing all the spaces to be intimately attached to the deck and garden with the glass slid back.

 
 

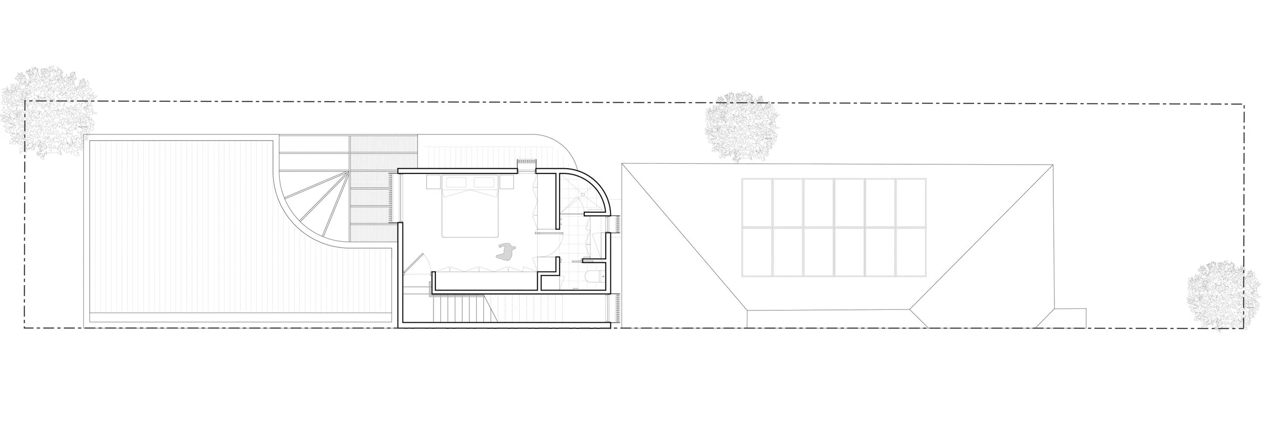
The front of the existing house was sensitively restored and kept largely intact with the existing front bedrooms reconfigured and enlarged, creating a children’s zone with a rumpus and bathroom. The main entry, previously at the front, was then relocated to the middle of the house, drawing visitors down alongside the existing main structure via a generous leafy side setback into the new public spaces housed in the belly. The parent’s zone sits quietly above the new spaces, with an abundance of northern light and views down into the courtyard.

The new addition, barely seen from the street, is a welcome surprise. Its simple crisp forms with strategically placed curved corners both improve function and subtly reference the art deco style of the bayside area. Gently touching the existing house, it is meant to serve as a contrast, establishing a new architectural form and identity for the rear of the site.

AMPLE_CENTRE YARD HOUSE_ENTRY.jpg
 

The new dwelling is intended to feel warm and inviting through a pared back, minimal material pallet of exposed concrete, white bagged and painted brick walls, white washed timber ceiling and walls and American oak tones. On the outside, white textured brick is combined with ripples of white corrugated metal. This focus on material and surface changes through textural shifts and timeless durable materials create a fuss-free, easy backdrop for everyday family living.

 
 
 

Images: Batch