a m p l e
ANOM_BURNLEY-ST-RES_FRONT.jpg

House for a Host

ANOM_BURNLEY-ST-RES_FRONT.jpg
 

A House for a Host, 2018. A collaboration with Sonelo

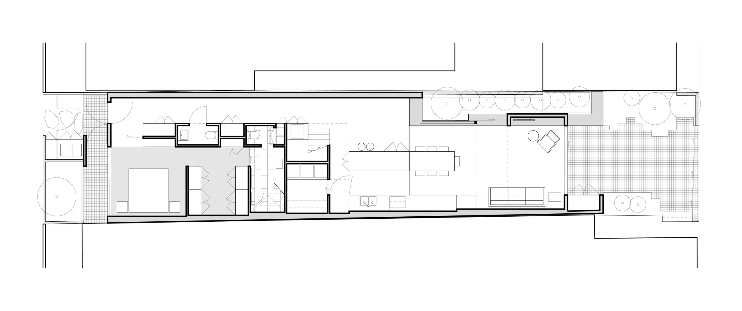
This project is a home designed for a couple as well as a home for their community. To achieve this, we knew that “more space” was not the answer. It needed to be both compact and intimate, yet possess an openness and flexibility.

Located next door to Hideaway House, the clients approached us to replace their deteriorating terrace that they had owned for many years. The new design was to fulfil a modest brief to create a home for the couple that could also expand to accommodate their gatherings, dinner parties and visiting family members. 

 
 
 

The house is split with everyday spaces kept accessible on the ground floor, while additional rooms for guests and the occasional sports night sit above, allowing the house to "shrink" and "grow". This sectioning minimises upkeep and limits unnecessary energy consumption. 

 
 
MODEL-GIF.gif
 
 
189BURNLEY_DD_PLAN_01_WEB-SEC-03.jpg
 
 

Spaces are designed to overlap or blend together allowing functions to expand and contract depending on the time of the day, week, or occasion.

The dining table becomes an extension of the kitchen bench. A partitioned section of the kitchen is concealed under the stairs. A concrete plinth frames the strip garden and stretches out from the kitchen, across the living room and into the rear courtyard allowing for different appropriations. Glazing slides back, expanding the living areas out into the garden. This overlapping of spaces allow boundaries to shift, enabling them to be used together or separately as needed. 

The result is a cosy home for two with the ability to stretch and welcome others.  

 

 
ANOM_BURNLEY-ST-RES_LIVING.jpg